Lichtdurchflutete 2-Zimmer-Maisonette-Wohnung im Herzen von Schlebusch

51375 Leverkusen, Maisonettewohnung zur Miete

Objektdaten

  • Objekt-ID
    2545
  • Objekttypen
    Maisonettewohnung, Wohnung
  • Adresse
    51375 Leverkusen
    (Schlebusch)
  • Etage
    3
  • Wohnfläche ca.
    65 m²
  • Zimmer
    2
  • Balkone
    1
  • Heizungsart
    Zentralheizung
  • Wesentlicher Energieträger
    Gas
  • Baujahr
    2000
  • Zustand
    gepflegt
  • Ausstattung
    Standard
  • Verfügbar ab
    nach Absprache
  • Kaution
    1.490,00 EUR
  • Kaltmiete
    745,00 EUR
  • Nebenkosten
    225,00 EUR

Ausstattung / Merkmale

  • ✓ Balkon

Energieausweis

  • Energieausweistyp
    Verbrauchs­ausweis
  • Ausstellungsdatum
    22.08.2019
  • Gültig bis
    --
  • Gebäudeart
    Wohngebäude
  • Baujahr lt. Energieausweis
    2000
  • Wesentlicher Energieträger
    Gas
  • Endenergie­verbrauch
    99,00 kWh/(m²·a)
  • Warmwasser enthalten
    ja
  • Energie­effizienz­klasse
    C
0 25 50 75 100 125 150 175 200 225 250+ H G F E D C B A A+ H G F E D C B A A+ Endenergieverbrauch 99,00 kWh/(m²·a)

Objekt­beschreibung

Beschreibung

Das Wohn- und Geschäftshaus mit insgesamt 7 Wohneinheiten sowie 2 Gewerbeeinheiten wurde im Jahr 2000 fertiggestellt. Das Gebäude ist im vorderen Bereich vollunterkellert.
Die Tiefgarage ist den Gewerbeeinheiten zugeordnet. Im Kellergeschoss des Hauses finden sich neben dem Technikraum auch die Einzelkeller für die jeweiligen Wohnungen sowie der gemeinschaftlich genutzte Wasch- und Trockenkeller.

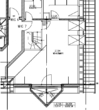
Die hier angebotene Wohneinheit Nr. 7 liegt im Dachgeschoss (entspricht 3. Obergeschoss) des Hauses. Mit 2 Zimmern, Küche, Diele, Bad, Gäste-WC, kleinem Balkon sowie 2 Abstellkammern ist die Wohnung großzügig geschnitten und mit rund 65 m² Wohnfläche ideal für Singles oder Paare.

Die Räume sind auf 2 Ebenen verteilt. In der unteren Ebene befinden sich der geräumige Wohn- und Essbereich mit Zugang zum Balkon, die Küche sowie die Diele mit dem Duschbad. Der Treppenaufgang nach oben erfolgt in der Diele.
In der oberen Ebene befinden sich das Schlafzimmer sowie ein Abstellraum.

Das besondere Flair der Wohnung findet sich im Wohn- und Essbereich. Der Raum erstreckt sich bis in die Dachspitze und die teils sichtbaren Deckenbalken verleihen dem Raum Struktur und Behaglichkeit. Große Fensterflächen lassen den Raum hell und freundlich erscheinen.

Ausstattung

  • Fenster mit Isolierverglasung
  • Gas-Zentralheizung
  • Warmwasserversorgung über Durchlauferhitzer bzw. Untertischgerät
  • Fußbodenheizung
  • moderne Vinylböden in Parkettholz-Optik im Wohn- und Schlafzimmer
  • helle Wand- und Bodenfliesen in Küche, Bad und Gäste-WC
  • Raufaser, weiß gestrichen
  • Abstellkammer
  • Balkon
  • Wasch- und Trockenraum im Keller
  • Kellerraum/MIeterkeller

Sonstiges

Es wird ein langjähriges, unbefristetes Mietverhältnis angestrebt. Der Mietbeginn wird in Absprache zwischen Mieter und Eigentümer festgelegt. Im Mietvertrag wird ein wechselseitiger Kündigungsverzicht von mindestens 3 Jahren angestrebt.

Die Zwischenverwertung bleibt vorbehalten. Eine Weitergabe des Angebotes an Dritte ist nicht gestattet.

In Fotos oder Grundrissen dargestellte Einrichtungen, Möbel und dergleichen sind nicht Gegenstand der Vermietung und dienen lediglich der Veranschaulichung oder als Einrichtungsbeispiel.

Ein Besichtigungstermin in den Mieträumen ist nach Absprache möglich.

Wir freuen uns auf Sie.

Direktanfrage

* Pflichtangaben
 SSL-verschlüsselt
Immobiliendaten-Import und Darstellung für WordPress: WP-ImmoMakler